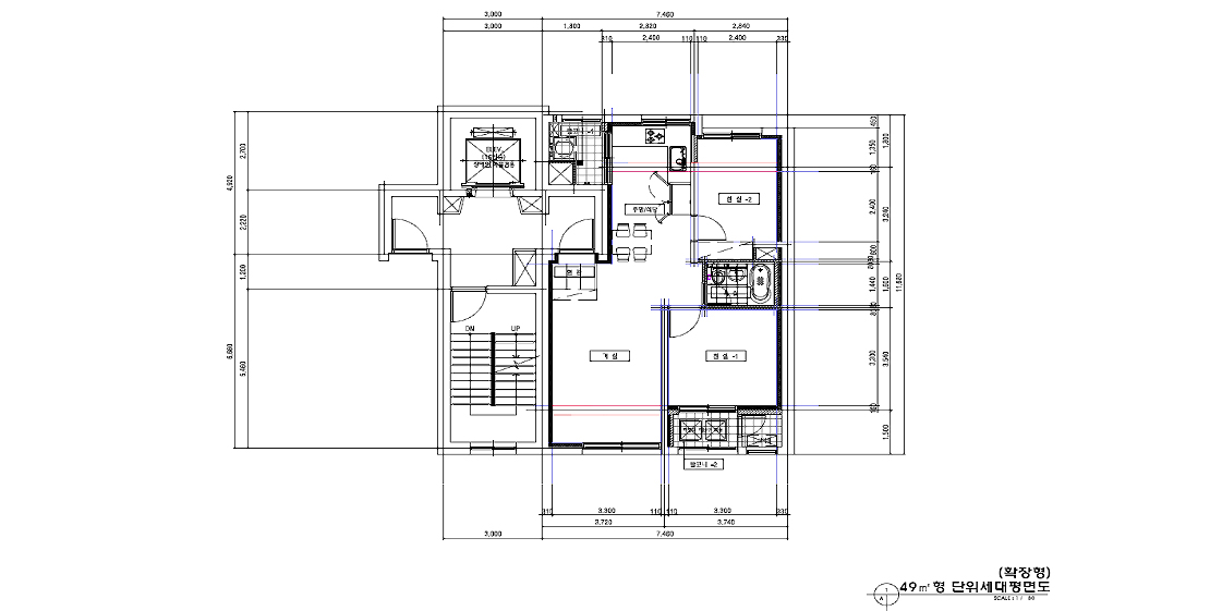
단위세대평면도
-
49 Type(계획 세대수: 112세대)
짜임새 있게 활용도를 높이고 실속과 품격을 겸비한 합리적인 공간
-
※ 면적 수치는 제작과정상 오탈자가 있을 수 있으므로 계약 시 반드시 확인하시기 바랍니다.
※ 2009년 4월 1일 주택공급에 관한 규칙 일부 개정으로 인해 기존 주택형 표기방식 분양면적(전용+주거공용)에서 주거전용면적만 표기하도록 변경되었으니 이 점 유의하시기 바랍니다.
-
단지안내